新築一戸建て

長野市大字富竹の新築戸建[物件特徴]

  NEW

掲載情報更新日:2026年04月21日 次回更新予定日:2026年05月05日

4,360万円

月々のお支払い例


万円


計算

※ 月々のお支払例は目安の試算となりますので、金融機関や商品によって借入金額の条件は異なります。詳しくは店舗までお問合わせください。

所在地

長野市大字富竹

交通

長野電鉄長野線『朝陽』 徒歩12分 (約960m)
長野電鉄長野線『附属中学前』 徒歩18分 (約1440m)
しなの鉄道北しなの『三才』 徒歩24分 (約1920m)

建売とは思えない創意工夫の間取りと確かな性能が魅力! オシャレさも◎ 外構も行ってお引渡しです!
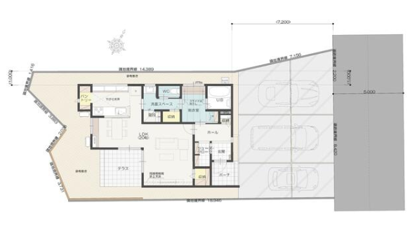
【間取り】
☆20帖の広いLDK
☆洗濯→干すがその場で完結!
☆1階の収納力の高さは=便利さに直結!
☆2階のウォークスルークローゼットもすごく便利♪

【間取り】
☆20帖の広いLDK ☆洗濯→干すがその場で完結! ☆1階の収納力の高さは=便利さに直結! ☆2階のウォークスルークローゼットもすごく便利♪

【外観】
■外観イメージパース
駐車計画◎

【外観】
■外観イメージパース 駐車計画◎

物件の特徴

主な設備

電気

上水道

下水道

都市ガス

食器洗浄乾燥機

IHクッキングヒータ

グリル

カウンターキッチン

システムキッチン

追焚機能

浴室暖房

浴室乾燥機

トイレ2箇所

温水洗浄便座

タンクレストイレ

洗髪洗面化粧台

室内物干機

エアコン

エアコン2基

照明器具

ダウンライト

人感照明センサー

省エネ給湯器

ディンプルキー

ダブルロックキー

モニタ付インターホン

火災警報器/報知機

複層ガラス

全室フローリング

クローゼット

ウォークインクローゼット

床下収納

主な特徴

2階建

アピールポイント

■駐車場3台
■エアコン3台付
■家具セット付
■高気密高断熱住宅
■外壁サイディング
■バス1坪以上
■24時間換気システム
■閑静な住宅街
■設計住宅性能評価書あり(ZEH基準クリア)
■充実保証&アフターサービス
■省令耐火構造
■都市ガス(ガスコンロ&ガス給湯)
■耐震等級3
■設備保証10年

物件概要

使いやすさにこだわった間取りは要注目☆
内観も外観もオシャレでテンションが上がります♪
家具やエアコン付きも他の物件とは一線を画すポイント!

立地も非常に良いので完成前の完売も予想されます・・・
ぜひお早めにお問い合わせください!

価格 4,360万円 間取り 3LDK+S
物件種別 新築一戸建て
所在地 長野県長野市大字富竹 C
アクセス 長野電鉄長野線『朝陽』 徒歩12分 (約960m)
長野電鉄長野線『附属中学前』 徒歩18分 (約1440m)
しなの鉄道北しなの『三才』 徒歩24分 (約1920m)
建物面積 107.38㎡ 駐車場 あり 普通:3台
築年月 2026年(令和8年)09月予定 建築確認 第ERI-26009998号
建物構造 木造 2階建 工法
主要採光 南向 バルコニー
保証・評価
土地面積 190.11㎡(57.50坪) 接道 北東側(公道)幅 約5.0m 間口 約10.60m
私道 セットバック
地目 宅地 地勢 平坦
権利 所有権
都市計画 市街化区域
用途地域 2種中高
建ぺい/容積率 60% / 200% 土地国土法
許可番号 建築基準法
法令制限
小学区 古里小学校 徒歩9分 (約650m) 中学区 東北中学校 徒歩19分 (約1500m)
現況 建築中 引渡 期日指定:2026年10月以降
その他費用
周辺環境 朝陽学園 徒歩15分 (約1200m)
古里小学校 徒歩9分 (約650m)
東北中学 徒歩19分 (約1500m)
西友 古里店 徒歩14分 (約1100m)
ザ・ビッグ長野東店 徒歩19分 (約1500m)
セブンイレブン長野古里店 徒歩7分 (約550m)
ローソン長野富竹店 徒歩5分 (約350m)
長野市民病院 徒歩9分 (約700m)
備考 ■全2区画の分譲地
■現在建築中(2026年9月完成予定)
物件番号 4685765 取引態様 媒介

電話で問合せ

通話料無料

0120-183-980

定休日:水曜日、年末年始
営業時間:9:00~18:00

物件番号をお伝えください

物件番号

4685765

【取扱い店舗】ハウスドゥ 西尾張部取扱い店舗情報
ナビ女性画像

【取扱い店舗情報】

ハウスドゥ 西尾張部
取扱会社:株式会社アークビルド
所在地:〒381-0031 長野県長野市西尾張部1003-1
フリーダイヤル:0120-183-980
電話番号:026-217-7920 FAX:026-217-7933
免許番号:長野県知事(1)第5762号
所属団体:(公社)長野県宅地建物取引業協会会員
(公社)全国宅地建物取引業保証協会会員
(公社)首都圏不動産公正取引協議会加盟
定休日:水曜日、年末年始
営業時間:9:00~18:00

もっとたくさん物件がみたい!という方へ

店頭で

店頭ではHPに掲載できない物件を併せて
265件をご案内できます!

Webで

ご希望にマッチした物件や、新着・値下げ情報を
即日メールにてお届けします!

ページトップ

ページトップ